3.1 / B8
1.2 / 2 /dům B11
Volný

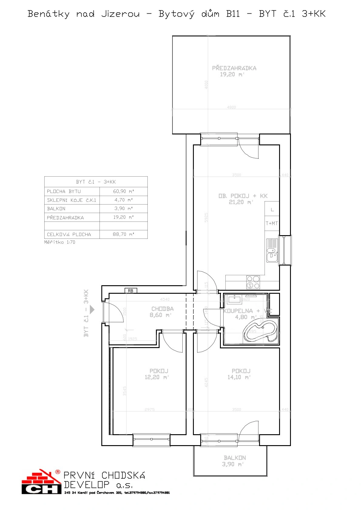
1.1 / 1 / dům B11

Cena: 6 200 000 Kč

Termín dokončení: 12/2026

PLOCHA

88,7 m²

PODLAŽÍ

1. NP

DISPOZICE

3+kk s předzahrádkou

SKLEP

4,70 m²

BALKÓN

3,9 m²

PŘEDZAHRÁDKA

19,2 m²