Zpět na hlavní stránku
Prohlédnout si Chrášťany
PŘEDSTAVENÍ
NABÍDKA BYTŮ
FOTOGALERIE
STANDARDY
✕
1.4 / 4 / B11
2.2 / 6 / B11
Prodáno
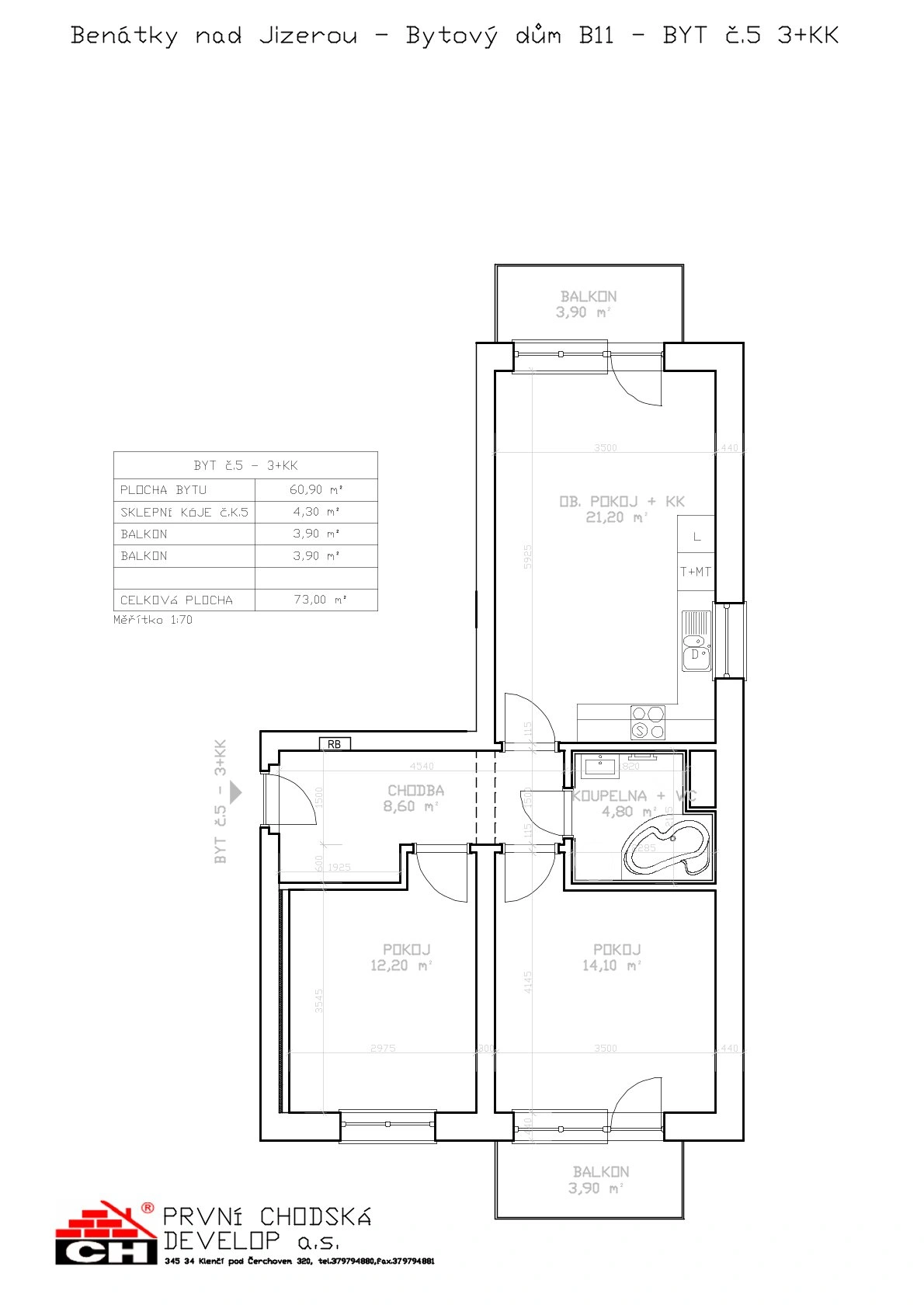
2.1 / 5 / B11
Cena: 6 100 000 Kč
Termín dokončení: 12/2026
PLOCHA
73 m²
PODLAŽÍ
2.NP
DISPOZICE
3+kk
SKLEP
4,3 m²
BALKÓN
3,9 + 3,9 m²
BALKÓN 2
není