Zpět na hlavní stránku
Prohlédnout si Chrášťany
PŘEDSTAVENÍ
NABÍDKA BYTŮ
FOTOGALERIE
STANDARDY
✕
2.4 / 8 / B11
3.2 / 10 / B11
Volný
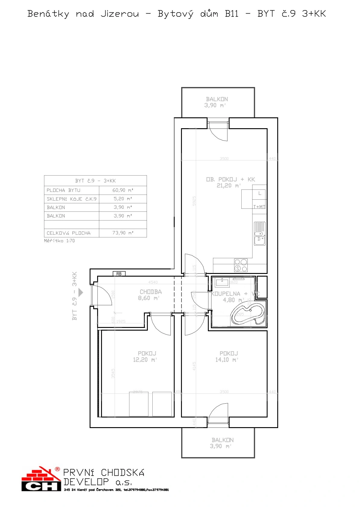
3.1 / 9 / B11
Cena: 5 999 000 Kč
Termín dokončení: 12/2026
PLOCHA
73,9 m²
PODLAŽÍ
3.NP
DISPOZICE
3+kk
SKLEP
5,2 m²
BALKÓN
3,9 + 3,9 m²
BALKÓN 2
není