1.2 / 2 / B12
2.1 / 4 / B12
Volný

1.3 / 3 / B12

Cena: 6 199 000 Kč

Termín dokončení: 12/2026

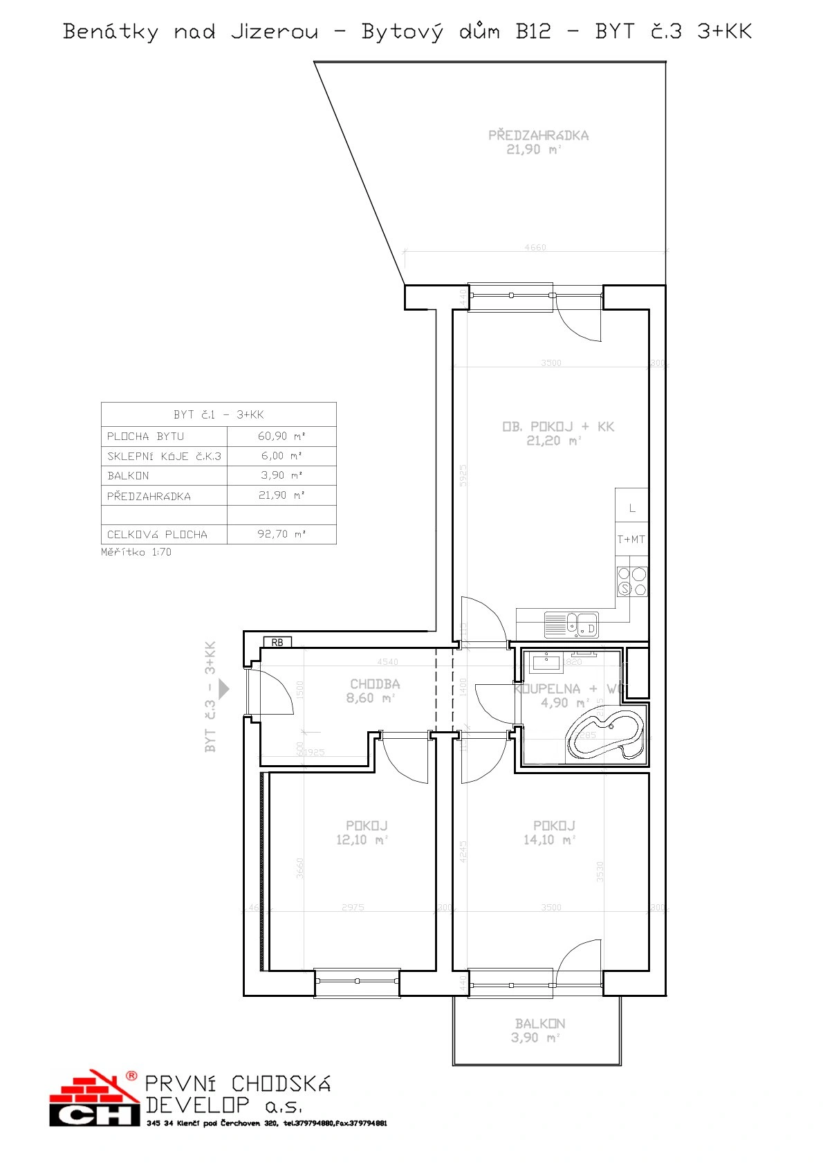
PLOCHA

92,7 m²

PODLAŽÍ

1. NP

DISPOZICE

3+kk s předzahrádkou

SKLEP

6,0 m²

BALKÓN

3,9 m²

PŘEDZAHRÁDKA

21,9 m²