Zpět na hlavní stránku
Prohlédnout si Chrášťany
PŘEDSTAVENÍ
NABÍDKA BYTŮ
FOTOGALERIE
STANDARDY
✕
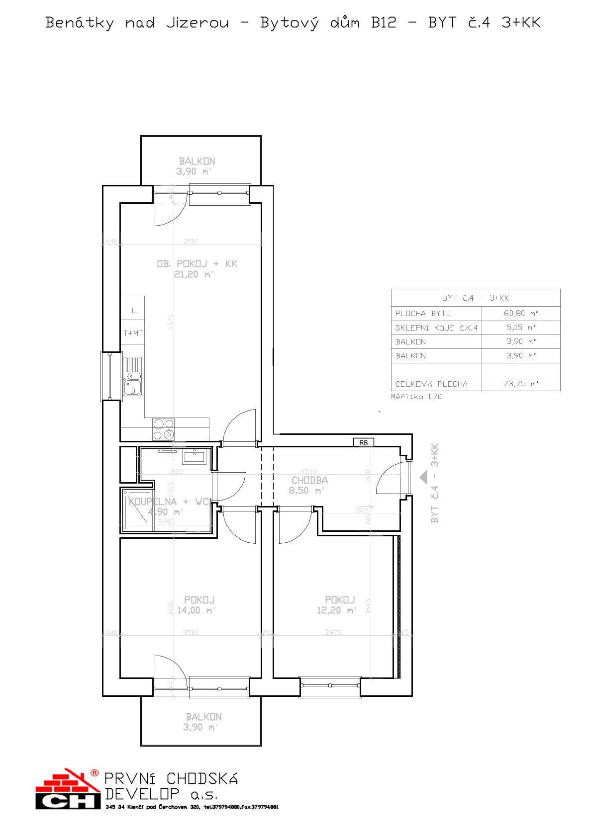
1.3 / 3 / B12
2.3 / 6 / B12
Prodáno
2.1 / 4 / B12
Cena: 6 099 000 Kč
Termín dokončení: 12 / 2026
PLOCHA
73,75 m²
PODLAŽÍ
1. NP
DISPOZICE
3+kk
SKLEP
5,12 m²
BALKÓN
3,9 + 3,9 m²
BALKÓN 2
není