Zpět na hlavní stránku
Prohlédnout si Chrášťany
PŘEDSTAVENÍ
NABÍDKA BYTŮ
FOTOGALERIE
STANDARDY
✕
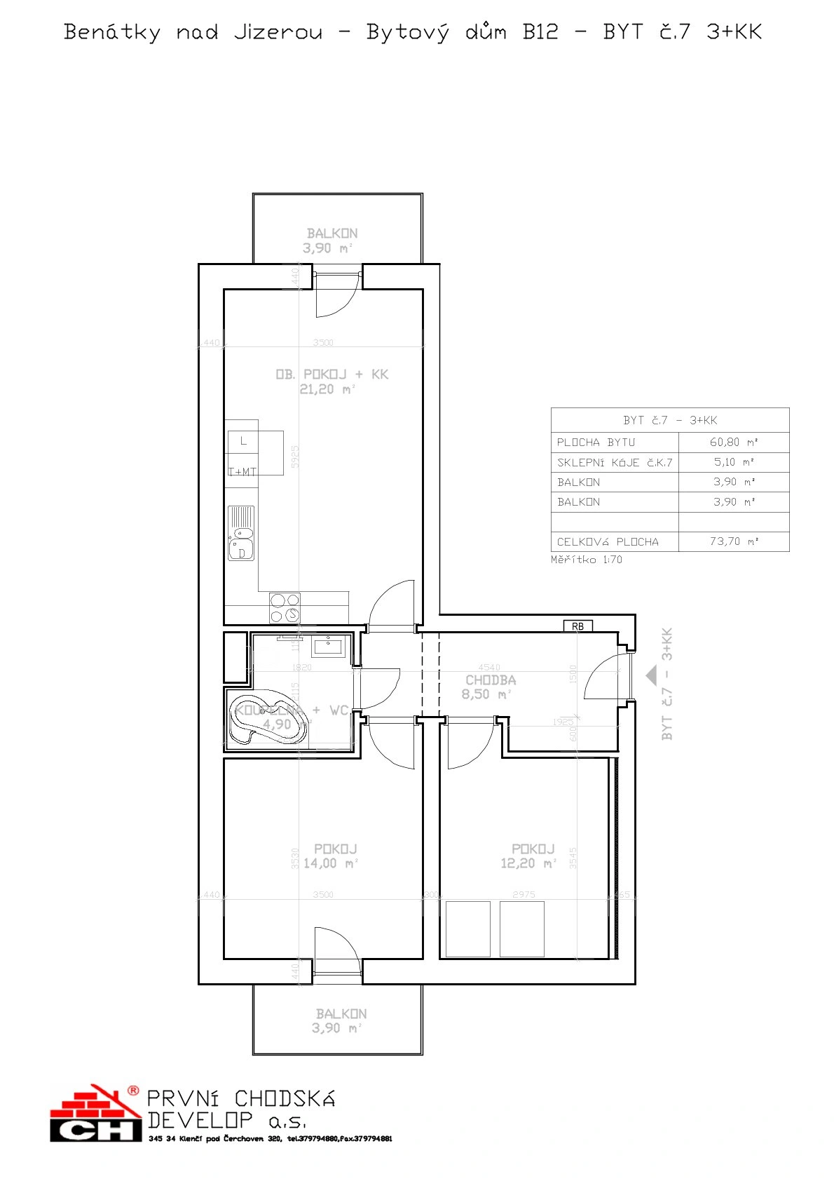
2.3 / 6 / B12
3.1 / 8 / B12
Volný
3.1 / 7 / B12
Cena: 5 999 000 Kč
Termín dokončení: 12/2026
PLOCHA
73,7 m²
PODLAŽÍ
3.NP
DISPOZICE
3+kk
SKLEP
5,1 m²
BALKÓN
3,9 + 3,9 m²
BALKÓN 2
není