Zpět na hlavní stránku
Prohlédnout si Chrášťany
PŘEDSTAVENÍ
NABÍDKA BYTŮ
FOTOGALERIE
STANDARDY
✕
2.1 / 4 / B12
3.1 / 7 / B12
Volný
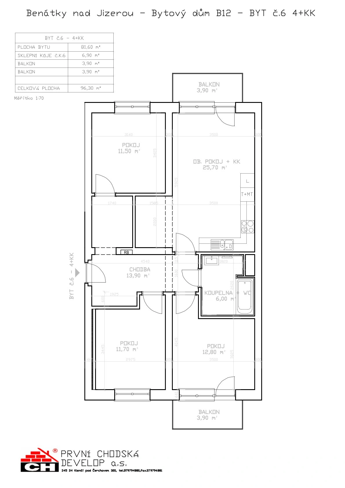
2.3 / 6 / B12
Cena: 7 800 000 Kč
Termín dokončení: 12 / 2026
PLOCHA
96,3 m²
PODLAŽÍ
2.NP
DISPOZICE
4+kk
SKLEP
6,9 m²
BALKÓN
3,9 + 3,9 m²
BALKÓN 2
není